By

CALL
TOUR PROPERTY
×

3354 Mainsail Crescent in Mississauga for sale

Asking price
$885,000
Estimate (Apr 23)
$875,759
MLS #:
W13035390
Type:
Semi-Detached, 2-Storey
Approx. SQFT:
1100-1500
Basement:
Full, Finished
4 4
1 30.05 x 124.51 ft lot
PROPERTY HISTORY
SIGN IN REQUIRED
List Date List Price Last Status Sold Date Sold Price Days On Market
0000-00-00 $00000 Sld Mar 24, 2016 $540,000

Listed by Royal Lepage Real Estate Associates.

3354 Mainsail Crescent is a Semi-Detached, 2-Storey and is currently for Sale @ $885,000. Taxes in 2026 were $5,190.00.

More homes for sale under 900k in Mississauga

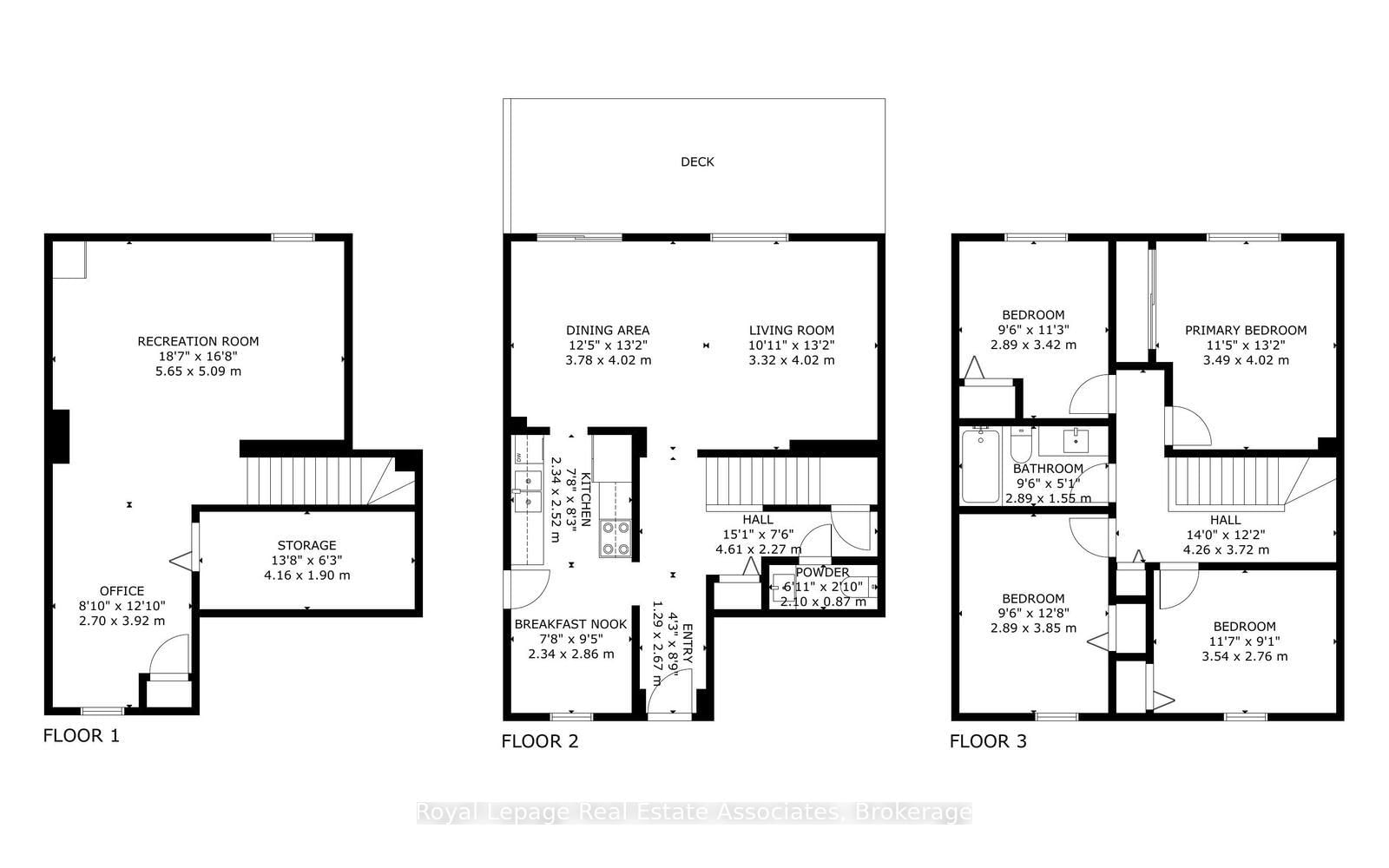
Beautifully maintained 4 bedroom semi-detached home in highly desirable Erin Mills, offering the perfect blend of space, style, and location. The 2-Storey on 3354 Mainsail Crescent has 4 bedrooms, 2 bathrooms, and is located on a 124.51 x 30.05 ft lot in the community of Erin Mills . Great family location with two parks right at the end of the street. This home has been thoughtfully updated throughout, is move-in ready, and designed for comfortable everyday living. The renovated eat-in kitchen features butcher block style wood countertops, stainless steel appliances, and brand new cabinetry. The beautiful new engineer hardwood floors create a modern setting throughout the whole main level. The bright open concept living/dining area has a large window and glass sliding door walking out to the backyard. Enjoy your summers in this private backyard featuring a wood deck with a gazebo, and ample space for the kids to play Four spacious bedrooms upstairs provide plenty of room for growing families, home offices, or guest accommodations. The finished basement adds valuable extra living space, perfect for a recreation room, playroom, gym, media area, or office. Close to excellent schools, parks, trails, shopping, transit, Credit Valley Hospital, Erin Mills Town Centre, Erindale & Clarkson Go Stations, and UTM Mississauga Campus. This is an exceptional opportunity to own a wonderful family home in one of Mississauga's most established communities. Easy access to highways 403, 407 & QEW. Main floor hardwood'26, Kitchen renovations '26 Furnace'25, AC heat pump'25, Shingles'22, Bathroom Renovation '21, 2nd floor windows'21, Living Room Window & Patio Door'19.

Fridge, stove, dishwasher, built-in microwave, washer, dryer, furnace, ac, all window coverings, all light fixtures, auto garage opener, gazebo in backyard, basement tv backet, exterior cameras, basement standup freezer

The address 3354 Mainsail Crescent was listed for sale (MLS# W13035390) on Thursday, April 23, 2026.

WHAT'S YOUR HOME WORTH?

Click here to get an instant estimate and track its value over time.

  • Date Listed: Thursday, April 23, 2026
  • Listing Brokerage: Royal Lepage Real Estate Associates - Disclaimer: The information contained in this listing has not been verified by Royal Lepage Real Estate Associates and should be verified by the buyer.
  • Virtual Tour: View Virtual Tour for 3354 Mainsail Crescent
  • City: Mississauga

    More 4 bedrooms homes for sale in Mississauga

  • Neighbourhood: Erin Mills
  • Major Intersection: Glen Erin Drive & The Collegeway
  • Full Address: 3354 Mainsail Crescent, Mississauga, L5L 1H2, Canada, ON, Canada
  • Kitchen: hardwood floor, Eat-In Kitchen, Renovated
  • Living Room: hardwood floor, O/Looks Backyard, Picture Window
  • Amenities:
  • Taxes: $5,190.00 (2026)
Kitchen8 x 8 ft64 sq ft
Breakfast9 x 8 ft72 sq ft
Dining13 x 12 ft156 sq ft
Living13 x 11 ft143 sq ft
Primary13 x 11 ft143 sq ft
2nd Br12 x 9 ft108 sq ft
3rd Br13 x 9 ft117 sq ft
4th Br11 x 9 ft99 sq ft
Rec19 x 17 ft323 sq ft
Office13 x 9 ft117 sq ft
  • Sunday - April 26 2:00 - 4:00 PM

Recently sold comparables in Erin Mills

Similar homes for sale

WHAT'S YOUR HOME WORTH?

Click here to get an instant estimate and track its value over time.