Local real estate rules require that you sign in to view sold property information.
| List Date | List Price | Last Status | Sold Date | Sold Price | Days On Market |
|---|---|---|---|---|---|
| 0000-00-00 | $00000 | Exp | N/A | N/A | N/A |
Listed by Harvey Kalles Real Estate Ltd..
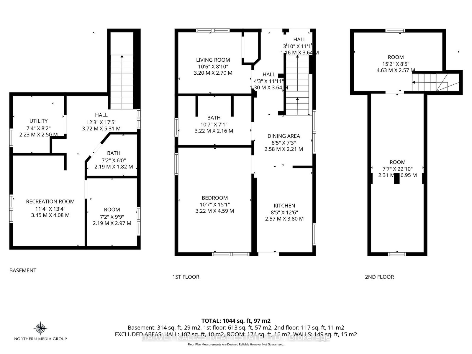
105 Ormond Street N is a Detached, 1 1/2 Storey and is currently for Sale @ $399,000. Taxes in 2026 were $2,292.00.
More homes for sale under 400k in Thorold
Welcome to 105 Ormond St N a well-maintained 3+1 bedroom home offering flexibility and strong income potential, with separate basement entrance, two full bathrooms, and a layout suited for multi-unit or extended family living, this property is ideal for families and investors alike. The 1 1/2 Storey on 105 Ormond Street N has 3 bedrooms, 2 bathrooms, and is located on a 101 x 37 ft lot in the community of Thorold Downtown . Upgrades include furnace (2023) and A/C (2020), Hot water tank (owned) new carpets in the basement unit and upper loft bedroom, and new doors throughout the home. The finished lower level offers added living space or rental potential, making this a smart addition to any portfolio. Great lot for summer activities and tons of room for parking. Just a stones throw from major highways, shipping ports, and Brock University, this location offers both accessibility and great value.
1 stove, 1 stove (as-is bsmt) washer, dryer, 2 fridge, microwave, window coverings, sewer pump
The address 105 Ormond Street N was listed for sale (MLS# X12998986) on Tuesday, April 14, 2026.