By

CALL
TOUR PROPERTY
×

Lot 29 Virtue Drive in London South for sale

MLS #:
X12908316
Type:
Detached, 2-Storey
Approx. SQFT:
2000-2500
Basement:
Full, Unfinished
4 4
2 40 x 110 ft lot
PROPERTY HISTORY
List Date List Price Last Status Sold Date Sold Price Days On Market
0000-00-00 $00000 Exp N/A N/A N/A

Listed by Century 21 First Canadian Corp. Shahin Tabeshfard Inc..

Lot 29 Virtue Drive is a Detached, 2-Storey and is currently for Sale @ $1,065,000. Taxes in 2025 were $0.00.

More homes for sale under 1.1M in London South

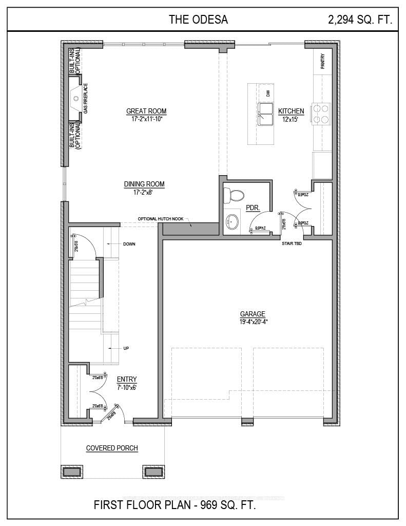
To be built in Hidden Hills West; Northwest London's newest up and coming neighbourhood. The 2-Storey on Lot 29 Virtue Drive has 4 bedrooms, 3 bathrooms, and is located on a 110 x 40 ft loton < .50 acres in the community of South B . This home boasts 2,294 sq ft of living space with 3 bedrooms and 2.5 bathrooms and a bonus loft space or additional 4th bedroom. Featuring 9 ft ceilings on the main floor and a desirable open concept living, kitchen and dining space; with engineered hardwood flooring and elegant tile options. Complete with modern amenities and the convenience of second floor laundry. The upper level features 2 full baths, including an elegant 5pc ensuite and spacious primary retreat with a large walk-in closet; as well as 2 additional bedrooms. Ideally located with easy access to the 402 and many other great amenities; lush parks, scenic walking trails, convenient shopping centres, restaurants, grocery stores and schools. Alternative floor plans available. With over 20 years experience creating quality homes. Marquis Developments has established a solid reputation for outstanding workmanship and reliability of service. Discover the difference in creating your home with Marquis Developments. Closings available into late 2026/2027.

None

The address Lot 29 Virtue Drive was listed for sale (MLS# X12908316) on Monday, March 23, 2026.

WHAT'S YOUR HOME WORTH?

Click here to get an instant estimate and track its value over time.

  • Date Listed: Monday, March 23, 2026
  • Listing Brokerage: Century 21 First Canadian Corp. Shahin Tabeshfard Inc. - Disclaimer: The information contained in this listing has not been verified by Century 21 First Canadian Corp. Shahin Tabeshfard Inc. and should be verified by the buyer.
  • City: London South

    More 4 bedrooms homes for sale in London South

  • Neighbourhood: South B
  • Major Intersection: Oxford & Gideon
  • Full Address: Lot 29 Virtue Drive, London South, N6K 4N7, Canada, ON, Canada
  • Kitchen:
  • Amenities:
  • Taxes: $0.00 (2025)
Kitchen12 x 15 ft180 sq ft
Great Rm17 x 11 ft187 sq ft
Dining17 x 8 ft136 sq ft
Foyer7 x 6 ft42 sq ft
Primary16 x 13 ft208 sq ft
2nd Br13 x 11 ft143 sq ft
3rd Br12 x 13 ft156 sq ft
4th Br10 x 9 ft90 sq ft
Laundry7 x 10 ft70 sq ft

Recently sold comparables in South B

Similar homes for sale

WHAT'S YOUR HOME WORTH?

Click here to get an instant estimate and track its value over time.