By

Sign In
Sign In to view listing's details
×

286 Mceachern Crescent in Orleans has been sold

MLS #:
X12637100
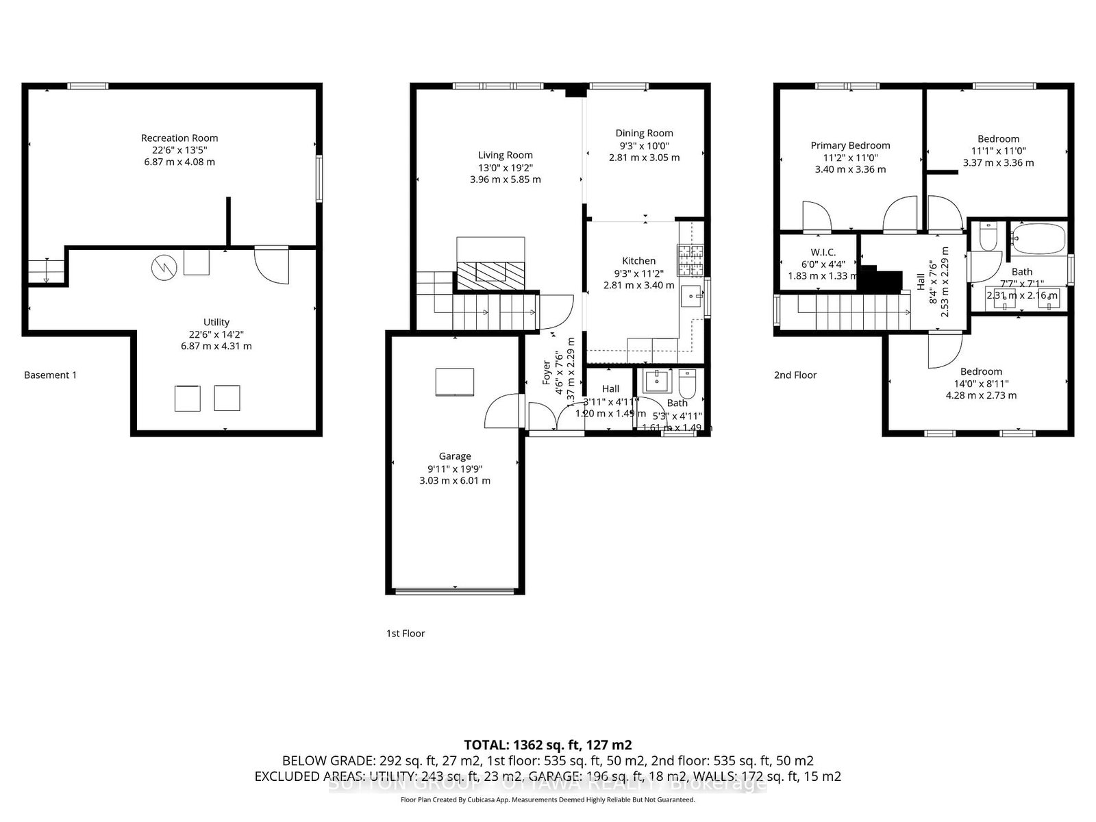
Type:
Detached, 2-Storey
Approx. SQFT:
1100-1500
Basement:
Part Fin
3 3
1 34.25 x 88.68 ft lot

Listed by Sutton Group - Ottawa Realty.

286 Mceachern Crescent is a Detached, 2-Storey and is currently for Sale @ $649,000. Taxes in 2025 were $3,600.00.

More homes for sale under 600k in Orleans

Welcome to 286 McEachern - a beautifully renovated single-family home offering modern style, comfort, and peace of mind from top to bottom. The 2-Storey on 286 Mceachern Crescent has 3 bedrooms, 2 bathrooms, and is located on a 88.68 x 34.25 ft lot in the community of Bilberry Creek/Queenswood Heights . Featuring 3 bedrooms, 1.5 baths, and an attached single-car garage, this home has been fully updated with high-quality improvements inside and out. Step inside to a bright, refreshed interior showcasing fully renovated bathrooms, a modern kitchen with quartz countertops, new flooring, fresh paint, all-new fixtures, and a finished basement perfect for extra living space. Major mechanical and exterior updates provide worry-free living, including new HVAC, A/C, and roof with new shingles. Outside, enjoy the newly updated front walkway, decks, and landscaping, ideal for entertaining or relaxing. Located in the heart of Orléans, close to Place d'Orléans, Petrie Island, parks, recreation centres, and top-rated schools, this home offers a vibrant, family-friendly lifestyle with shopping, dining, and outdoor activities just minutes away. Move-in ready and finished with care - don't miss your chance to make it yours! Upgrades include ( 2025 ) Roof & Shingles, HVAC, Furnace and AC, Hot water heater, LVP flooring, Paint entire house, Full Bathrooms and kitchen reno , finished basement , new back deck, updated PEX plumbing entire home, new front walkway and landscaping .

washer , dryer, fridge , stove, microwave, dishwasher

The address 286 Mceachern Crescent was listed for sale (MLS# X12637100) on Tuesday, December 16, 2025.

WHAT'S YOUR HOME WORTH?

Click here to get an instant estimate and track its value over time.

  • Date Listed: Tuesday, December 16, 2025
  • Listing Brokerage: Sutton Group - Ottawa Realty - Disclaimer: The information contained in this listing has not been verified by Sutton Group - Ottawa Realty and should be verified by the buyer.
  • Virtual Tour: View Virtual Tour for 286 Mceachern Crescent
  • City: Orleans

    More 3 bedrooms homes for sale in Orleans

  • Neighbourhood: Bilberry Creek/Queenswood Heights
  • Major Intersection: Bourcier Drive & Tomkins Ave
  • Full Address: 286 Mceachern Crescent, Orleans, K1E 3K3, Canada, ON, Canada
  • Amenities:
  • Taxes: $3,600.00 (2025)

Similar homes for sale