Local real estate rules require that you sign in to view sold property information.
Listed by Sutton Group-Masters Realty Inc., Brokerage.
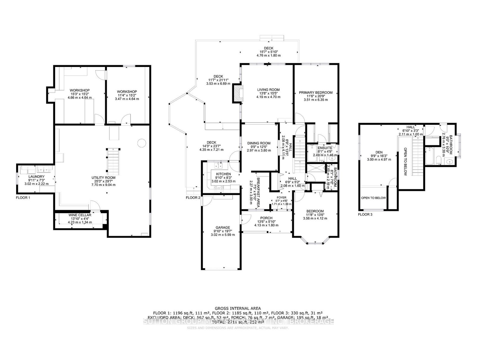
17 Country Club Drive is a Detached, Bungaloft and is currently for Sale @ $619,900. Taxes in 2025 were $4,792.00.
More homes for sale under 600k in Bath
This unique bungaloft in Loyalist Lifestyle Community offers a charming, character-filled home nestled on a picturesque Creekside lot in Bath. The Bungaloft on 17 Country Club Drive has 2 bedrooms, 3 bathrooms, and is located on a 150 x 52 ft lot in the community of Bath . Built originally by developers for personal use, it combines comfort with distinctive features. Main floor features a functional kitchen with a breakfast room, a formal dining area overlooking a sunken, light-filled living room with a cozy natural gas fireplace, and a spacious primary bedroom with an updated ensuite bath. Additionally, there's a guest bedroom and a main bathroom. Upstairs, the loft and full bathroom can serve as a third bedroom or versatile living space. Enjoy outdoor living on a large deck with a pergola overlooking a beautifully landscaped yard, where the sounds of the creek create a peaceful atmosphere. Residents have access to a full-service marina, championship golf, tennis and pickleball courts, scenic trails, and a charming selection of shops, cafés, and restaurants. Whether retiring, seeking community, or simply relaxing, the Village of Bath offers a wonderful lifestyle.
The address 17 Country Club Drive was listed for sale (MLS# X12493126) on Thursday, October 30, 2025.