By

Sign In
Sign In to view listing's details
×

43 Horton Street in Ajax has been sold

MLS #:
E12746310
Type:
Semi-Detached, 3-Storey
Approx. SQFT:
1500-2000
Basement:
Finished
4+1 4+1
1 17.78 x 96.96 ft lot
PROPERTY HISTORY
List Date List Price Last Status Sold Date Sold Price Days On Market
0000-00-00 $00000 Exp N/A N/A N/A

Listed by Re/Max Metropolis Realty.

43 Horton Street is a Semi-Detached, 3-Storey and is currently for Sale @ $869,000. Taxes in 2025 were $6,195.10.

More homes for sale under 900k in Ajax

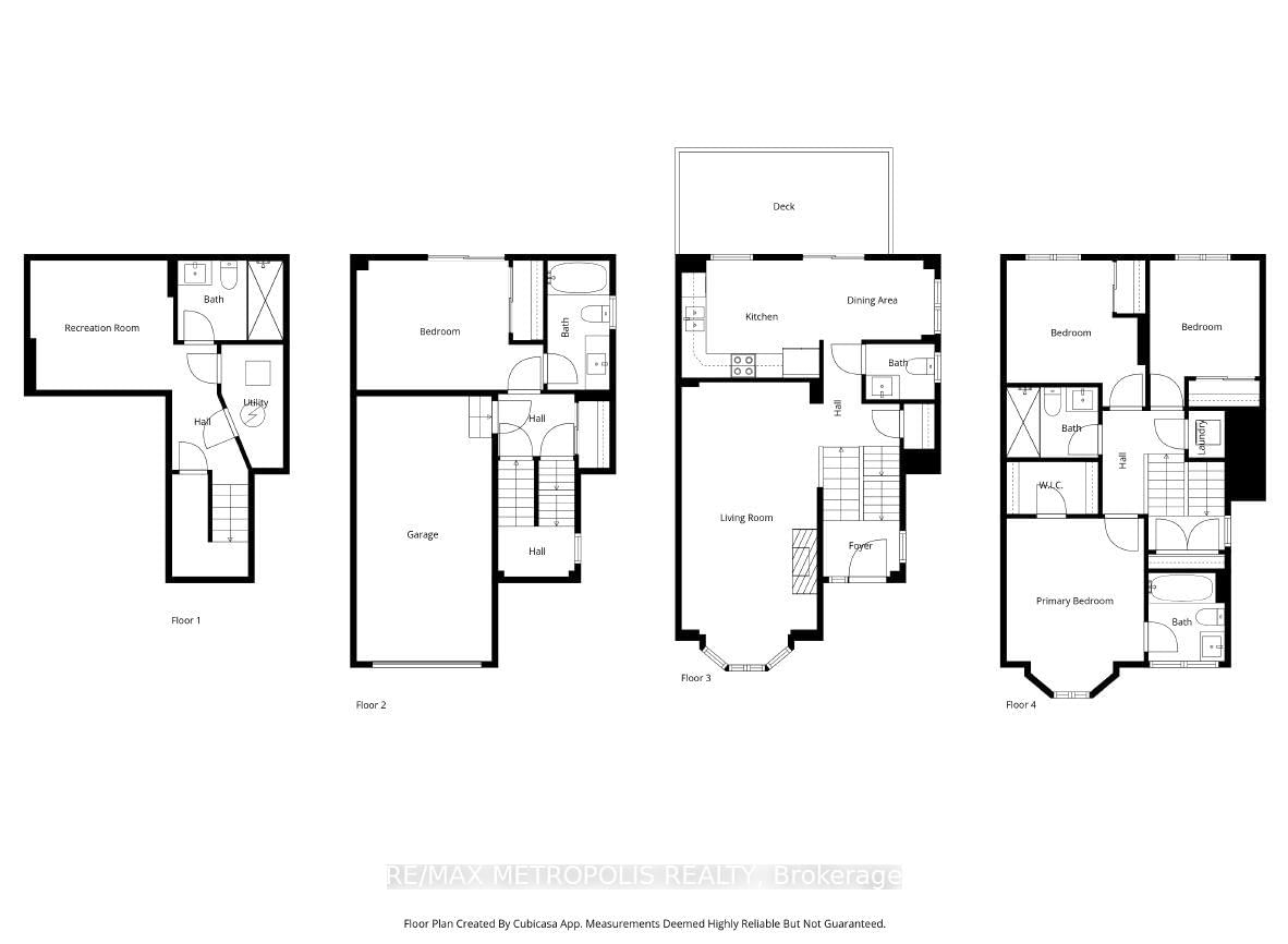
Welcome to 43 Horton St, located in one of Ajax's sought-after areas. The 3-Storey on 43 Horton Street has 4 bedrooms, 5 bathrooms, and is located on a 96.96 x 17.78 ft lot in the community of Central East . This semi-detached is on a quiet, sidewalk-free, cul-de-sac and is UNDER 5 5-minute drive to Hwy 401, Hwy 412, Costco, Walmart Supercenter, Home Depot, CanTire, Cineplex, Iqbal Foods, Schools, Transit, dozens of restaurants, and shops. The ready-to-move-in unit recently underwent renovations worth over 60k, including all-new stainless-steel appliances, a washer/dryer, a paint job, and a kitchen and washroom makeover. Walking up, you enter a 9-foot ceiling living room with a bow window, fire place and dining area. The fully renovated kitchen has a large breakfast area and opens up to the deck overlooking a large corner lot backyard. Upstairs, the Master bedroom comes with 3 pcensuite bath and is separated from the other two bedrooms, which share a separate 3 pc bath. The laundry is conveniently located upstairs as well. Ground level, there is the 4th bedroom with 3 pc ensuite bath and has a separate entrance to the backyard, which, along with the basement room, can be converted into an in-law suite or future rental. There are plenty of parking spaces in the front and on the roundabout, with space in the backyard for recreation or even a garden suite!

The address 43 Horton Street was listed for sale (MLS# E12746310) on Sunday, February 01, 2026.

WHAT'S YOUR HOME WORTH?

Click here to get an instant estimate and track its value over time.

  • Date Listed: Sunday, February 01, 2026
  • Listing Brokerage: Re/Max Metropolis Realty - Disclaimer: The information contained in this listing has not been verified by Re/Max Metropolis Realty and should be verified by the buyer.
  • City: Ajax

    More 4 bedrooms homes for sale in Ajax

  • Neighbourhood: Central East
  • Major Intersection: Kingston Rd E/Salem Rd
  • Full Address: 43 Horton Street, Ajax, L1Z 1E3, Canada, ON, Canada
  • Living Room: Fireplace, Pot Lights
  • Kitchen:
  • Amenities:
  • Taxes: $6,195.10 (2025)
4th Br12 x 10 ft120 sq ft
Living11 x 23 ft253 sq ft
Kitchen11 x 10 ft110 sq ft
Dining9 x 6 ft54 sq ft
Primary11 x 14 ft154 sq ft
2nd Br11 x 12 ft132 sq ft
3rd Br9 x 12 ft108 sq ft
Rec12 x 10 ft120 sq ft