Local real estate rules require that you sign in to view sold property information.
| List Date | List Price | Last Status | Sold Date | Sold Price | Days On Market |
|---|---|---|---|---|---|
| 0000-00-00 | $00000 | Ter | N/A | N/A | N/A |
Listed by Century 21 Property Zone Realty Inc..
97 SPARKHALL Avenue is a Semi-Detached, 2-Storey and is currently for Sale @ $1,549,000. Taxes in 2025 were $8,325.00.
More homes for sale under 1.5M in Toronto
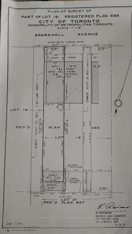
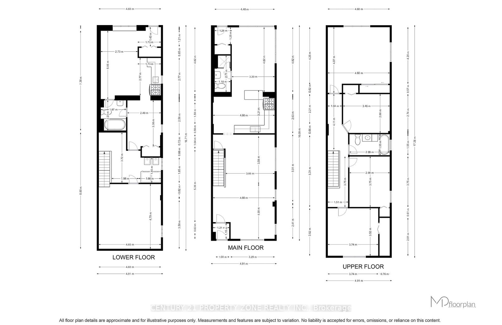
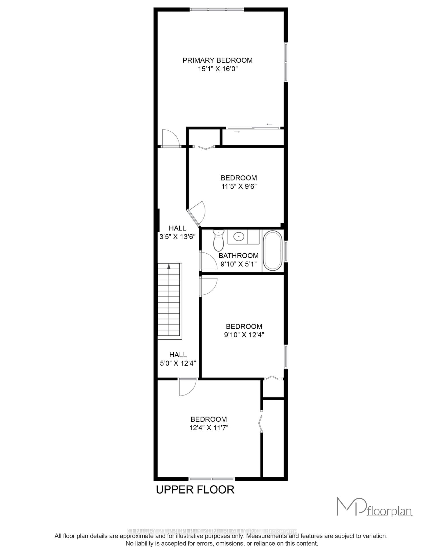
Welcome to this spacious and well-maintained 2-storey semi-detached home in the highly sought-after North Riverdale community, offering approximately 2,617 sq ft of total living space and an exceptional blend of comfort, functionality, and urban convenience. The 2-Storey on 97 SPARKHALL Avenue has 4 bedrooms, 3 bathrooms, and is located on a 91.5 x 17.75 ft lot in the community of North Riverdale . Ideally located just steps from Danforth & Broadview, this home features a bright and practical main floor layout with a generous living room, formal dining area, and a large kitchen with adjoining family room-perfect for everyday living and entertaining. The upper level offers four well-sized bedrooms, including a spacious primary retreat, ideal for growing families. The fully finished walkout basement includes a self-contained 1-bedroom unit with separate entrance, kitchen, bathroom, and laundry, providing excellent potential for rental income or multi-generational living. Enjoy unbeatable access to some of Toronto's best amenities, including a short walk to Riverdale Park East with iconic skyline views, minutes to Broadview Subway Station (Line 2) for quick downtown access, nearby streetcar routes (504, 505, 506), and vibrant Danforth (Greektown) offering restaurants, cafes, and shopping. With close proximity to the DVP, Gardiner Expressway, Lakeshore Blvd, and Don Valley trails, this location offers exceptional connectivity and lifestyle. Situated in one of Toronto's most desirable neighbourhoods known for strong demand, excellent walkability, and family-friendly appeal, this property is ideal for families, professionals, and investors seeking long-term value and growth potential. A copy of the survey is attached, and the property benefits from a right of way to the rear garage located between 99 and 101 Sparkhall Avenue, providing convenient access. The existing garage is currently not in functional condition; however, it presents a future opportunity for restoration, allowing potential for rear parking.
The address 97 SPARKHALL Avenue was listed for sale (MLS# E13014696) on Friday, April 17, 2026.